header

Frischer Wind für Nachwuchskicker

In Frankfurt am Main baut der Deutsche Fußball-Bund seine neue Fußballakademie. Für das perfekte Klima in der Talentschmiede sorgen RLT-Anlagen der NOVA Apparate GmbH mit Radialventilatoren von ebm-papst.

Wenn die Nachwuchskicker des DFB nach zwei Stunden intensivem Training mit glühenden Köpfen in die Kabine gehen, ist an die anschließende Taktik­einheit im Videoraum kaum zu denken. Die jungen Talente müssen sich erst einmal akkli­matisieren und etwas durch­schnaufen, ehe sie den kommenden Gegner analysieren können.

Um diesen „Cooldown“ zu beschleunigen, braucht es natürlich ein gutes Mann­schaft­klima. Doch auch das richtige Raumklima ist wichtig. Schließlich taktiert es sich mit einem kühlen Kopf und ausreichend Sauerstoff am besten. Gut, dass der DFB in seiner neuen Fußball­akademie auf Raumluft­technik-Anlagen der NOVA Apparate GmbH setzt. Diese versorgen den gesamten Gebäude­komplex mit ausreichend Frischluft und regulieren die Temperatur sowie die Luftfeuchtigkeit. Dabei kommen in der Akademie insgesamt 22 RLT-Anlagen zum Einsatz – sei es für die Seminar- und Fitnessräume, für die Büros und Umkleiden, den Presse­konferenz­saal oder das Athletenhaus mit seinen 33 Zimmern.

Natürliches Kühlen mit Wasser

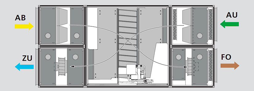
Das Besondere an den eingesetzten RLT-Anlagen ist die Ka2O-Technologie – eine Kühlmethode basierend auf der indirekten Verdunstungs­kühlung. Dabei wird die verbrauchte Luft aus dem Innenraum angesaugt und mit kleinen Sprühdüsen befeuchtet. Das Wasser verdunstet und entzieht der Abluft Wärme. Das geschieht in den Ka2O-Gegen­strom-Wärme­tauschern. Dort wird die angesaugte warme Außenluft durch die kalte Abluft heruntergekühlt, ohne sich mit ihr zu vermischen. Zum Schluss wird die Außenluft noch gefiltert und in den Innenraum geleitet.

Die Ka2O-Technologie integriert im RLT-Gerät. [AB: Abluft, ZU: Zuluft, AU: Außenluft und FO: Fortluft]
Quelle: NOVA Apparate GmbH

Im Vergleich zu klassischen Kältemaschinen verzichten die RLT-Anlagen gänzlich auf chemische Kältemittel oder eine mechanische Kühlung. Damit ist die Verdunstungs­kühlung besonders umweltschonend. Schließlich kommt sie nur mit Wasser und etwas elektrischen Strom für die Wasser­pumpen und Ventilatoren aus. Dementsprechend sind die RLT-Anlagen in der DFB-Akademie sehr energie­effizient und fast vollständig CO2-neutral. Das zeigt, dass immer mehr Unternehmen, auf die Ka2O -Technologie setzen, um ihren CO2-Fußabdruck zu reduzieren.

„Das umwelt­freundliche Konzept der Verduns­tungs­kühlung hat uns überzeugt, in der neuen Fußball­akademie auf die RLT-Anlagen der NOVA Apparate GmbH zu setzen.“ – Winfried Naß, Technischer Projektleiter – Deutscher Fußball-Bund e.V.

Einziger Nachteil der Verdunstungs­kühlung war bisher allerdings die begrenzte Abkühlung um maximal 12 Kelvin. Mit der innovativen Ka2O-Technologie von NOVA wurde dieses Problem jedoch gelöst. Der Trick: Anstatt einen einzigen großen Wärme­tauscher zu verwenden, werden viele kleine Wärmetauscher modular miteinander kombiniert. Zudem werden die Modul­oberflächen, über die die alte Raumluft angesaugt wird, direkt mit Wasser besprüht. Dadurch entsteht auf vielen kleinen Flächen ein durchgehender Wasserfilm und insgesamt eine stärkere Abkühlung der Außenluft von bis zu 20 Kelvin. Das hat auch der TÜV Süd bestätigt.

Im Aufbau: Eine von 12 RLT-Anlagen mit Ka2O-Technologie in der neuen DFB-Akademie in Frankfurt. Quelle: NOVA Apparate GmbH

Doch wie gelangt die gekühlte Luft anschließend in den Innenraum? Dafür sorgen RadiPac-Radial­ventilatoren von ebm-papst. Diese besitzen ein sehr robustes und vibrationsarmes Hochleistungs­laufrad, das hohen Gegendrücken standhält. Außerdem sind die RadiPac mit GreenTech EC-Motoren ausgestattet. Dadurch haben sie bei geringem Strombedarf einen besonders hohen Wirkungsgrad. So eignen sich die RadiPac perfekt für den Einsatz in den RLT-Anlagen von NOVA. Zum einen wegen der Gegendrücke, die der Wärme­austausch erzeugt. Und zum anderen wegen des umwelt­schonenden Kühlkonzepts, das hinter der Ka2O-Technologie steckt.

Aerosole ade

Neben der Energieeffizienz und den geringen CO2-Emissionen ist seit letztem Jahr auch COVID-19 ein wichtiges Thema. Schließlich erhöht schlechtes oder falsches Lüften das Risiko, sich anzustecken. Doch auch hier punkten die RLT-Anlagen von NOVA, da sie allein mit frischer Luft von außen arbeiten. Dadurch wird die Luft in Innenräumen stets verdünnt und Aerosole deutlich reduziert. Das war dem DFB wichtig und für NOVA schon vor der Pandemie State of the Art.

So wird die Fußball-Akademie nach ihrer Fertigstellung Ende 2021 für ihre 428 Mitarbeiter ein optimales und sicheres Arbeitsklima bieten. Und auch die deutschen Nachwuchs­kicker können sich nach ihren hitzigen Trainingsduellen schneller abkühlen – ganz ohne Eistonne.

Dieser Beitrag erschien zuerst im Unternehmens-Blog mag das Magazin von ebm-papst.